ale ano, BC bude fungovat bude, ale určitě nebudou na CIDu mapy, takže bych to využití CIDu bylo o ničem...astros píše:Zbytočne? Takže BC už potom nejde? Myslím, že Zenec vie ovládať aj BC. Ale ostatné značky asi nie.
jestli si dobře pamatuji, tak při konfiguraci Corsa-D při volbě T&C je příplatek 10.000 Kč, takže ty ceny na ebay jsou trochu mimo.nedy666 píše:...ale 18tis je dost. Když by se časem dalo sehnat za půlku asi určo bych do toho šel za předpokladu že to v tom autě pojede v pohodě.
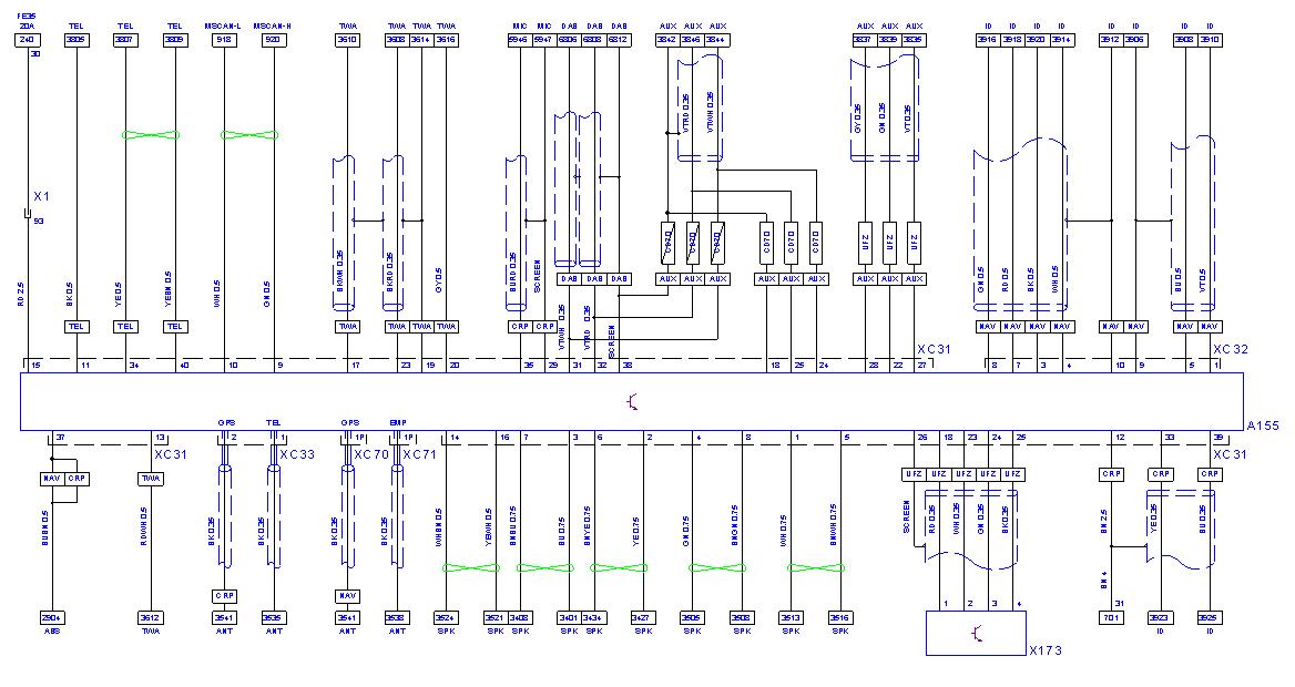
příručku bych také uvítal, zatím jsem ji nikde neviděl... origo. UHP nemusí být vůbec podporované, když má T&C HandsFree již ve výbavě (pokud opravdu má?)nedy666 píše:Ohledně UHP již co je v autě aplikován, nevím jak by se to s tím novým radiem chovalo, nebo jestli je to jen kabelaž s jednotkou vysílačem a přimačem který se píchne zezadu do radia a zbytek udělá samo radio. Protože touch ma svoje bluetooth. Možná kdyby se k tomu sehnal nějakej manual či servisní dalo by se z toho lecos vyčíst.
